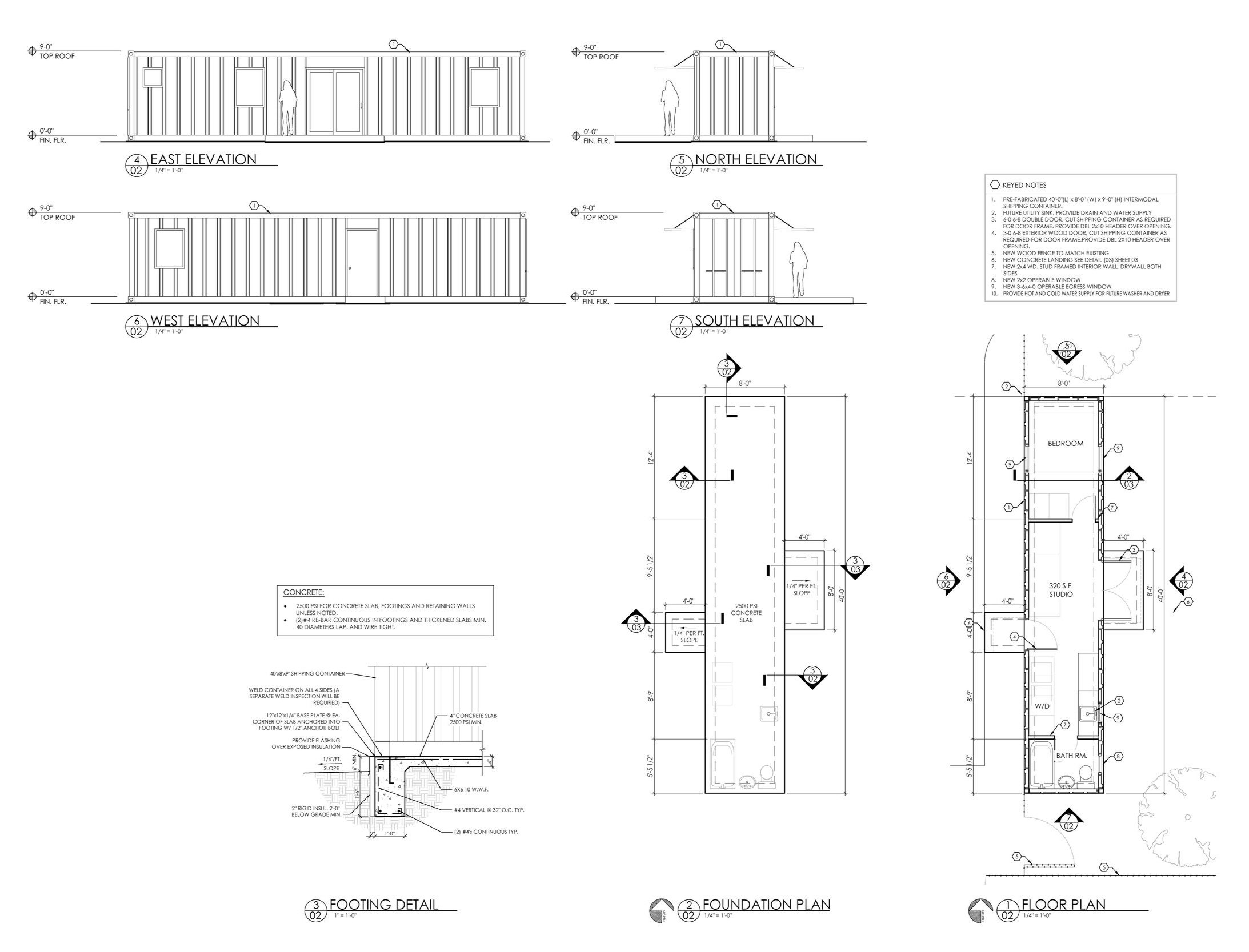
CONTAINER CASISTA
2203 New York St, Albuquerque, New Mexico
This urban-infill project was the first shipping container ADU permitted by the city of Albuquerque. The challenge was to meet the energy code requirements while providing a usable space on the interior. The space is used as a rental and provides much needed housing and density within the city.

